Disclaimer One
This property is to be sold via unconditional auction (option 1). The successful buyer will need to pay a non-refundable deposit of 10% of the value of the agreed purchase price, subject to a minimum of £3,000.00. Contracts will exchange immediately and completion will take place no later than 28 days of the date of the deposit being taken and the exchange of contracts.
Disclaimer Two
Every auction property comes with a guide price and a reserve price. The guide price sets the starting point for bidding, while the reserve price represents the minimum price that the seller is willing to accept at auction. The auctioneer is not allowed to sell the property below this reserve price. The reserve price is not revealed to the public and is kept confidential between the seller and the auctioneer. It may be up to 10% higher than the guide price.
Please note that both the guide price and the reserve price are subject to potential changes leading up to and including the day of the auction.
Disclaimer Three
At your request we can refer you to a Solicitor from our panel. It is your decision whether you choose to deal with them, should you decide to use them you should know that we would receive a referral fee of £180 including Vat from them for the recommendation.
Reservation Fee
This property is sold subject to a non-refundable reservation fee of £2,400.00 inc VAT (£2,000.00 plus VAT) The reservation fee does not form part of the purchase price.
Legal Pack
A legal pack will be available to download before the auctions end date. We strongly recommend all buyers to familiarise themselves with the legal pack prior to bidding.
Particulars
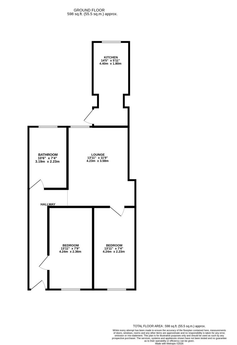
We endeavour to make our sales particulars accurate and reliable, however, they do not constitute or form part of an offer or any contract and none is to be relied upon as statements of representation or fact. Any services, systems and appliances listed in this specification have not been tested by us and no guarantee as to their operating ability or efficiency is given. All measurements have been taken as a guide to prospective buyers only, and are not precise. If you require clarification or further information on any points, please contact us, especially if you are travelling some distance to view. Fixtures and fittings other than those mentioned are to be agreed with the seller by separate negotiation.
A
* Generally speaking Guide Prices are provided as an indication of each seller's minimum expectation, i.e. 'The Reserve'. They are not necessarily figures which a property will sell for and may change at any time prior to the auction. Virtually every property will be offered subject to a Reserve (a figure below which the Auctioneer cannot sell the property during the auction) which we expect will be set within the Guide Range or no more than 10% above a single figure Guide.
Submit an enquiry and someone will be in contact shortly.
By setting a proxy bid, the system will automatically bid on your behalf to maintain your position as the highest bidder, up to your proxy bid amount. If you are outbid, you will be notified via email so you can opt to increase your bid if you so choose.
If two of more users place identical bids, the bid that was placed first takes precedence, and this includes proxy bids.
Another bidder placed an automatic proxy bid greater or equal to the bid you have just placed. You will need to bid again to stand a chance of winning.